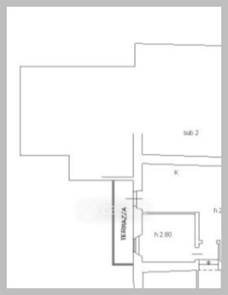
Appartamento in vendita Via Salvatore Tomaselli , Catania
Salva
Casa.it
1/32
  • Street View
  • Map