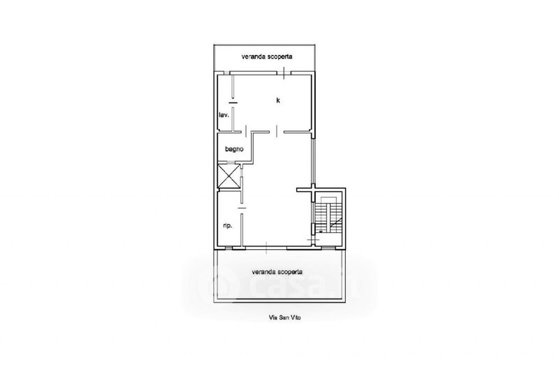
Appartamento in vendita Via San Vito 80, Custonaci
Salva
Casa.it
1/25
  • Street View
  • Map