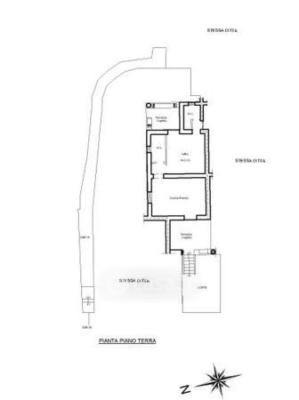
Appartamento in vendita Via Area Morta , Lipari
Salva
Casa.it
1/21
  • Street View
  • Map