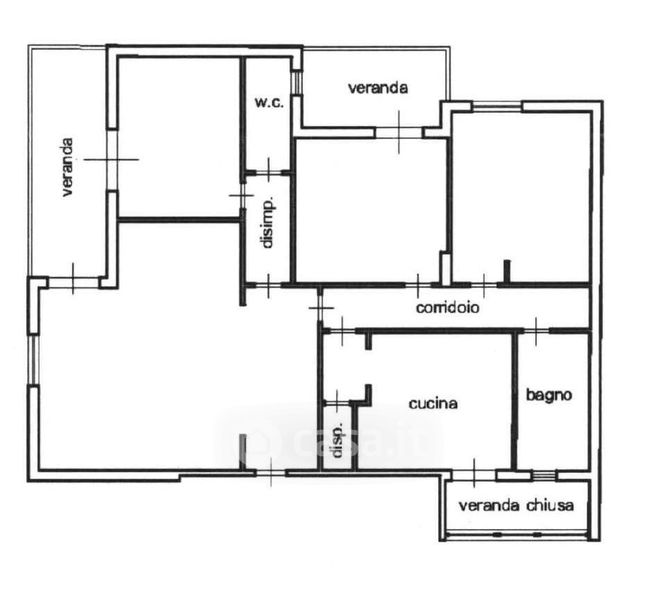
Appartamento in vendita Via Castelvetrano , Mazara del Vallo
Salva
Casa.it
1/22
  • Street View
  • Map