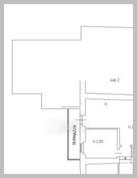
Appartamento in vendita Via Etna , Mazara del Vallo
Salva
Casa.it
1/32
  • Street View
  • Map