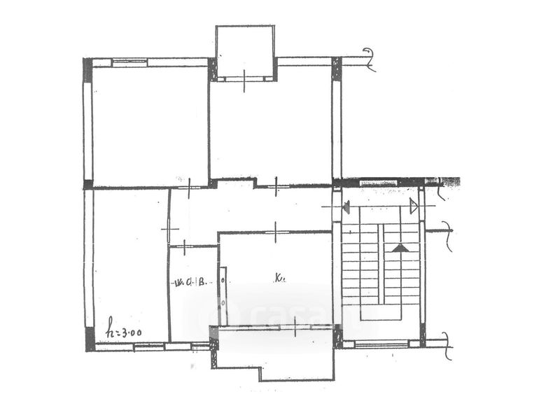
Appartamento in vendita Via Tommaso Hallam , Messina
Salva
Casa.it
1/51
  • Street View
  • Map