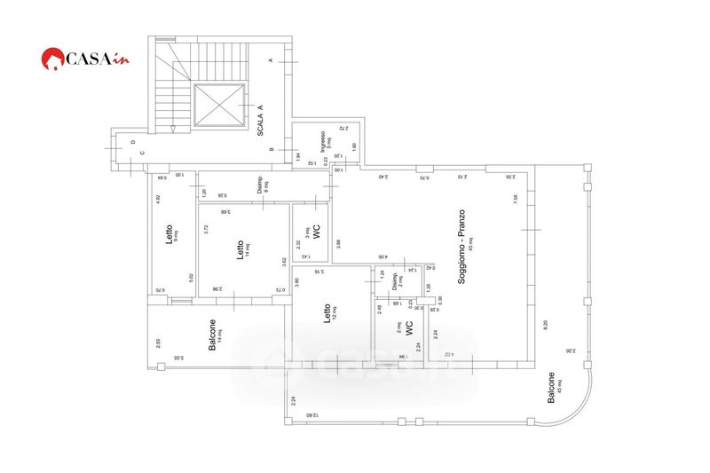
Appartamento in vendita Largo Arcipeschieri , Messina
Salva
Casa.it
1/34
  • Street View
  • Map