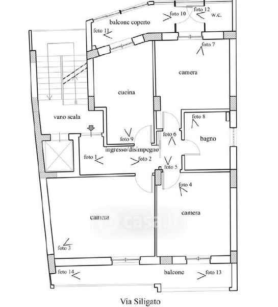
Appartamento in vendita Via Antonino Siligato , Messina
Salva
Casa.it
1/32
  • Street View
  • Map