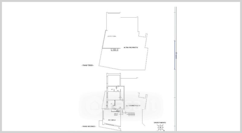
Appartamento in vendita Località San Giovannello , Messina
Salva
Casa.it
1/32
  • Street View
  • Map