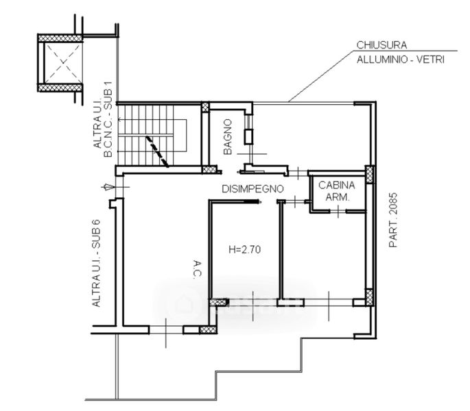
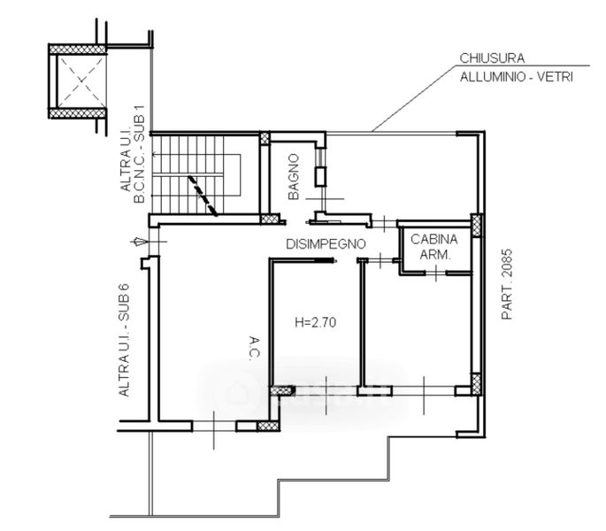
Appartamento in vendita Via Marinaio d'Italia 76, Milazzo
Salva
Casa.it
1/34
  • Street View
  • Map