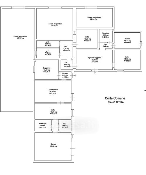
Appartamento in vendita Strada Leonardo Pizzardi , Misiliscemi
Salva
Casa.it
1/33
  • Street View
  • Map