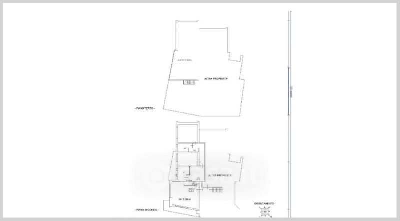
Appartamento in vendita Strada Provinciale 13 , Motta Sant'Anastasia
Salva
Casa.it
1/32
  • Street View
  • Map