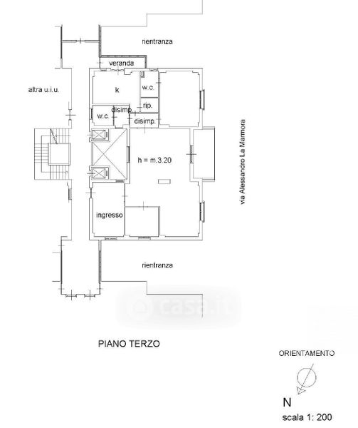
Appartamento in vendita Via Alessandro la Marmora 75, Palermo
Salva
Casa.it
1/27
  • Street View
  • Map