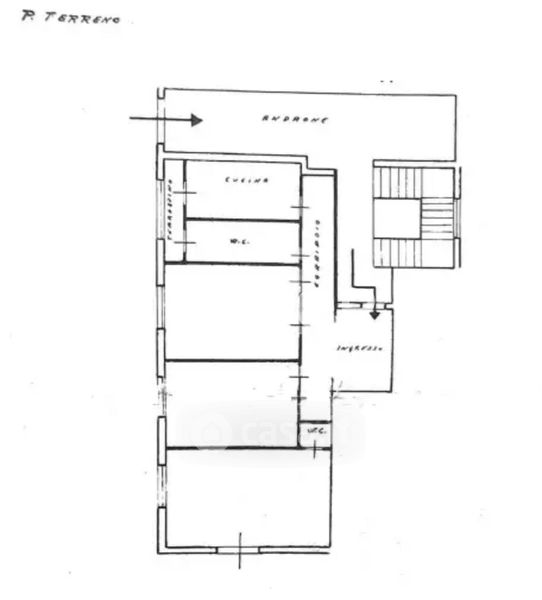
Appartamento in vendita Via Cardinale Lualdi Alessandro 4, Palermo
Salva
Casa.it
1/12
  • Street View
  • Map