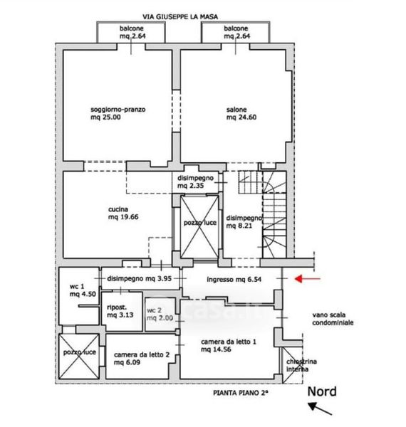
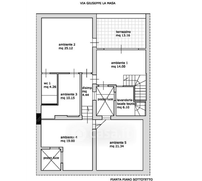
Appartamento in vendita Via Mariano Stabile , Palermo
Salva
Casa.it
1/40
  • Street View
  • Map