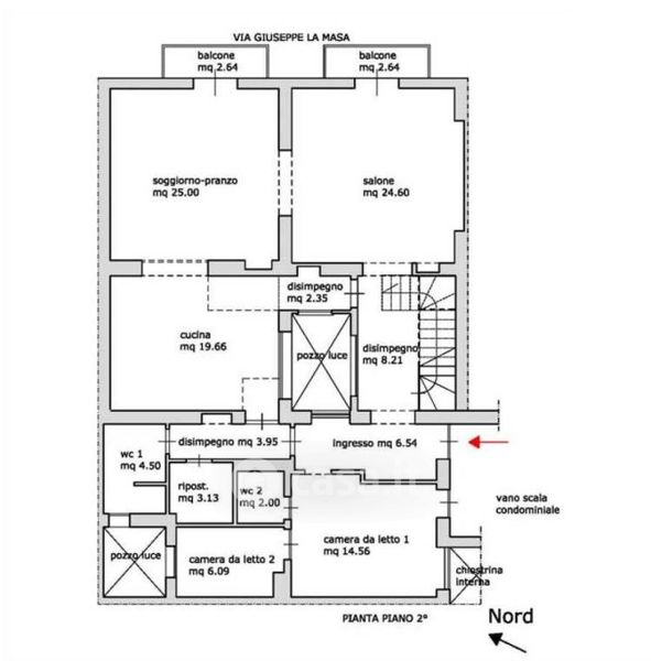
Appartamento in vendita Via Mariano Stabile 37, Palermo
Salva
Casa.it
1/14
  • Street View
  • Map