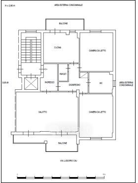
Appartamento in vendita Via Luigi Zacco , Palermo
Salva
Casa.it
1/34
  • Street View
  • Map