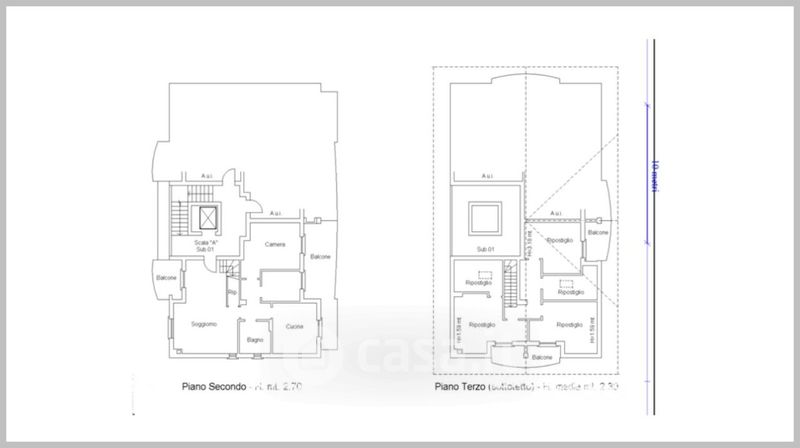
Appartamento in vendita Via Caduti sul Lavoro , Palermo
Salva
Casa.it
1/32
  • Street View
  • Map