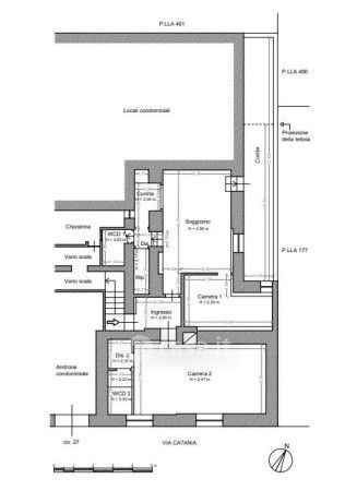
Appartamento in vendita Via Catania 27, Palermo
Salva
Casa.it
1/19
  • Street View
  • Map