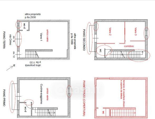
Appartamento in vendita Via Cirino 12, Partinico
Salva
Casa.it
1/19
  • Street View
  • Map