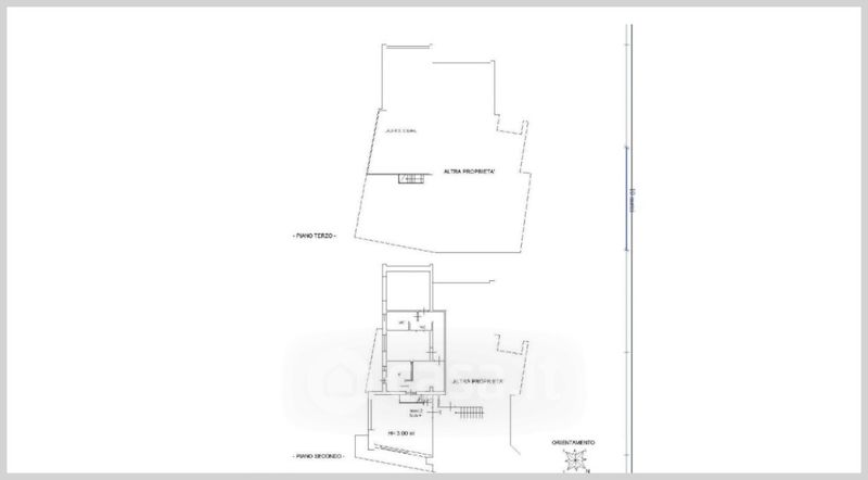
Appartamento in vendita Via Livorno , Paternò
Salva
Casa.it
1/37
  • Street View
  • Map