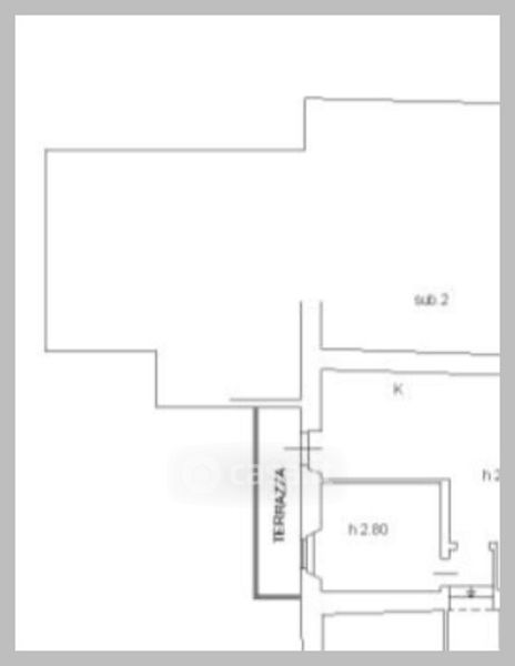
Appartamento in vendita Via Garibaldi , Paternò
Salva
Contatta l'inserzionista
Casa.it