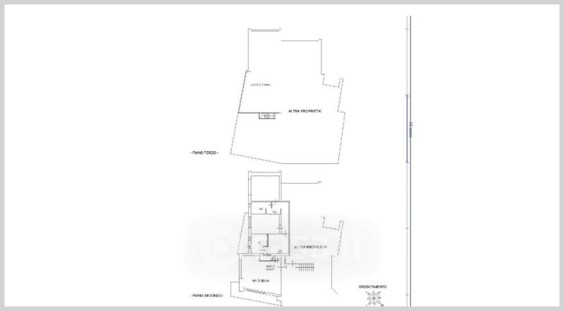
Appartamento in vendita Via Omero , San Giovanni Gemini
Salva
Casa.it
1/32
  • Street View
  • Map