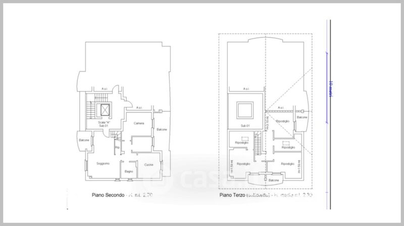
Appartamento in vendita Via della Regione , San Giovanni la Punta
Salva
Casa.it
1/37
  • Street View
  • Map