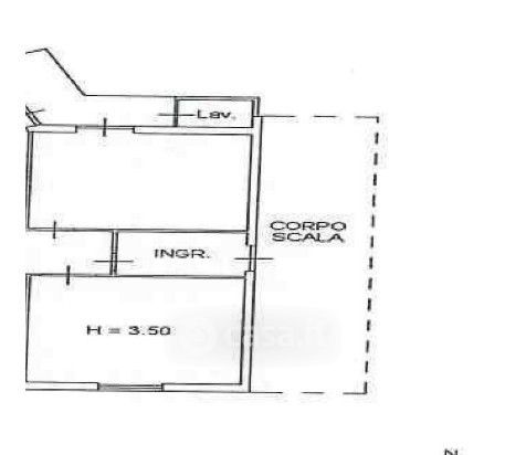
Appartamento in vendita Via Umberto 162, San Pietro Clarenza
Salva
Casa.it
1/18
  • Street View
  • Map