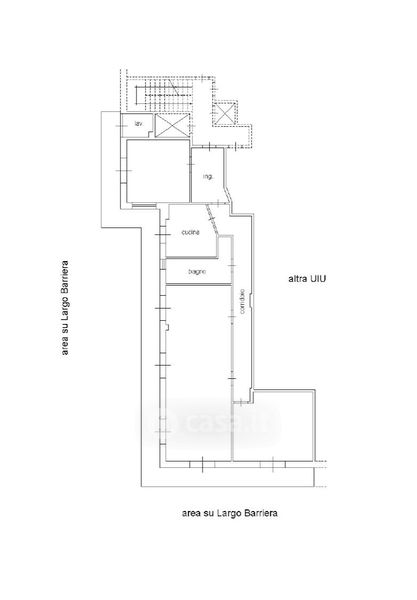
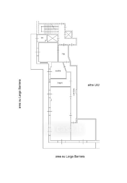
Appartamento in vendita Largo Barriera 10, Sant'Agata li Battiati
Salva
Casa.it
1/16
  • Street View
  • Map