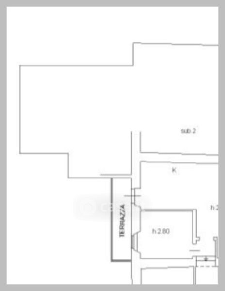
Appartamento in vendita Via Carlo Amato , Scicli
Salva
Casa.it
1/37
  • Street View
  • Map