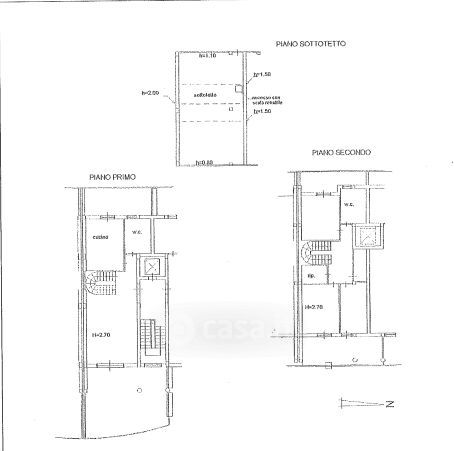
Appartamento in vendita Via Franca Maria Gianni , Siracusa
Salva
Casa.it
1/33
  • Street View
  • Map