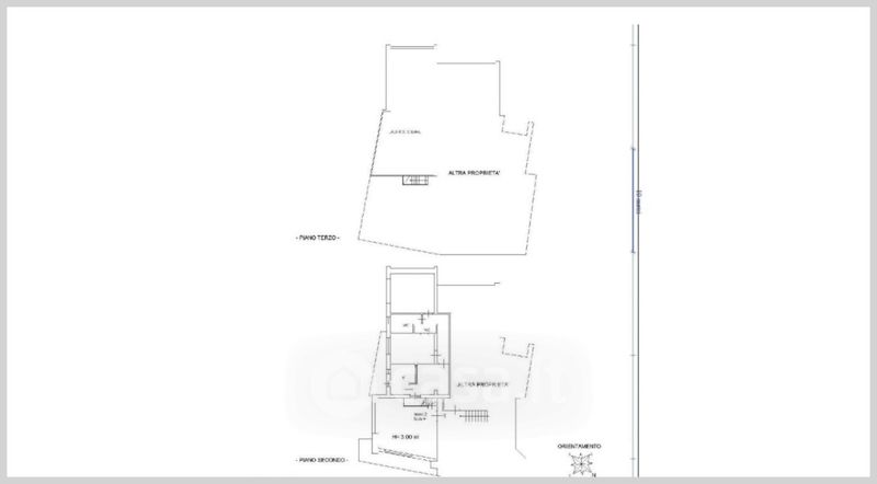
Appartamento in vendita Viale Scala Greca , Siracusa
Salva
Contatta l'inserzionista
Casa.it