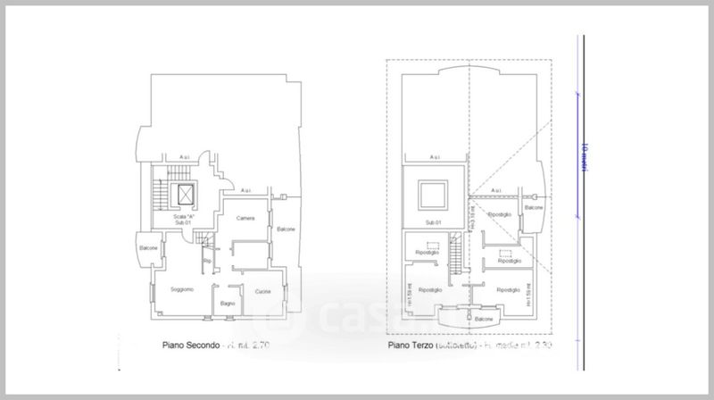
Appartamento in vendita Via Grotta Santa , Siracusa
Salva
Casa.it
1/32
  • Street View
  • Map