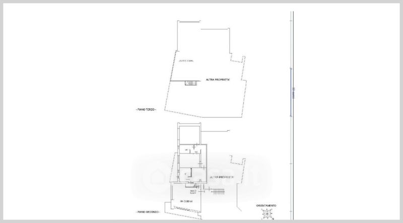
Appartamento in vendita Via Nazionale San Biagio , Terme Vigliatore
Salva
Casa.it
1/37
  • Street View
  • Map