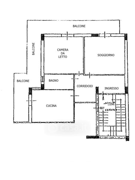
Appartamento in vendita Via Nazionale angolo Via Piersanti Mattarella , Torregrotta
Salva
Casa.it
1/45
  • Street View
  • Map