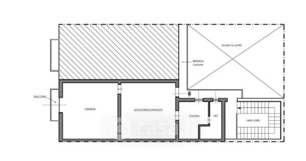
Appartamento in vendita Via Salvatore Lonero , Trapani
Salva
Casa.it
1/18
  • Street View
  • Map