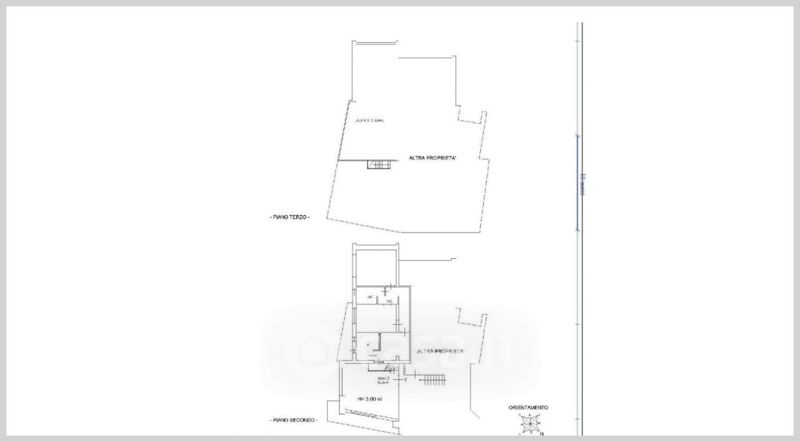
Appartamento in vendita Contrada Salmè , Vittoria
Salva
Casa.it
1/37
  • Street View
  • Map