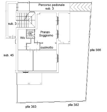
Appartamento in vendita Zona C 61 -83, Arezzo
Salva
Casa.it
1/26
  • Street View
  • Map