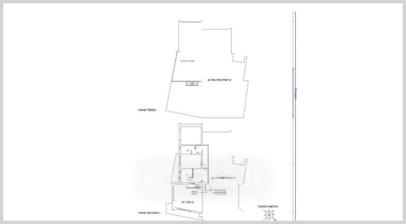
Appartamento in vendita Viale L. Cittadini , Arezzo
Salva
Casa.it
1/32
  • Street View
  • Map