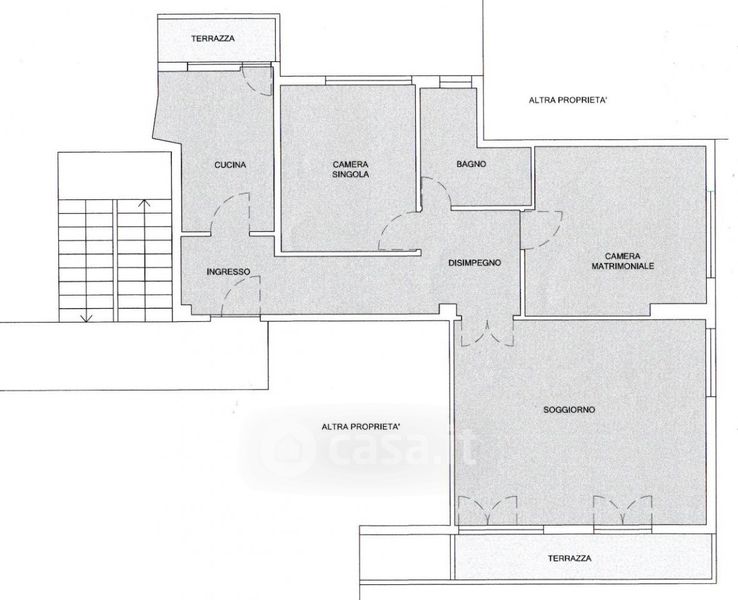
Appartamento in affitto Via Ristoro D'Arezzo , Arezzo
Salva
Casa.it
1/1
  • Street View
  • Map