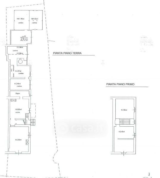
Appartamento in vendita Rigutino Ovest 186, Arezzo
Salva
Casa.it
1/26
  • Street View
  • Map