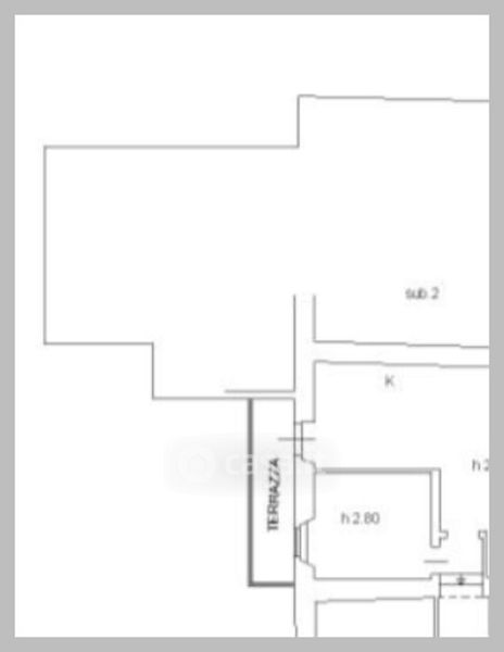
Appartamento in vendita Viale Toscana , Asciano
Salva
Casa.it
1/32
  • Street View
  • Map