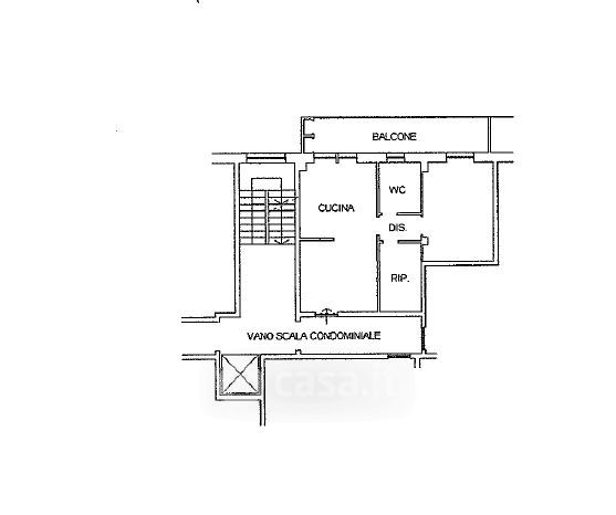
Appartamento in vendita Via della Repubblica 83, Aulla
Salva
Casa.it
1/23
  • Street View
  • Map