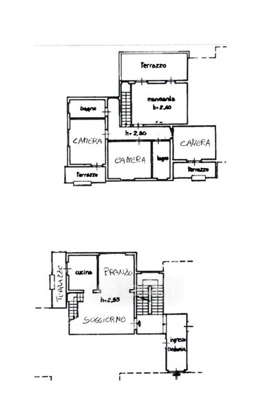
Appartamento in vendita Via di Poggio al Luco 17, Bagno a Ripoli
Salva
Casa.it
1/64
  • Street View
  • Map