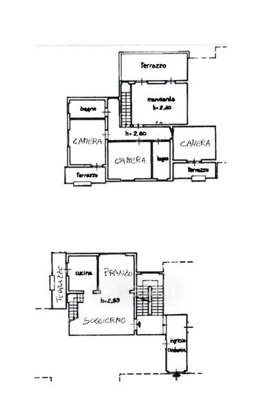
Appartamento in vendita Piazza di Villamagna 6 /A, Bagno a Ripoli
Salva
Casa.it
1/64
  • Street View
  • Map