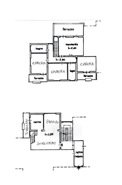
Appartamento in vendita Piazza di Villamagna 12, Bagno a Ripoli
Salva
Casa.it
1/66
  • Street View
  • Map