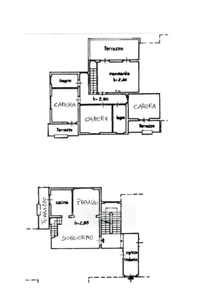
Appartamento in vendita Via di Poggio al Luco 13 /A, Bagno a Ripoli
Salva
Casa.it
1/65
  • Street View
  • Map