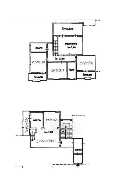
Appartamento in vendita Piazza di Villamagna 9 /A, Bagno a Ripoli
Salva
Casa.it
1/65
  • Street View
  • Map