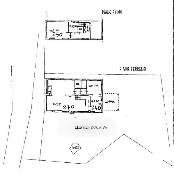
Appartamento in affitto Via di Tizzano 94, Bagno a Ripoli
Salva
Casa.it
1/25
  • Street View
  • Map