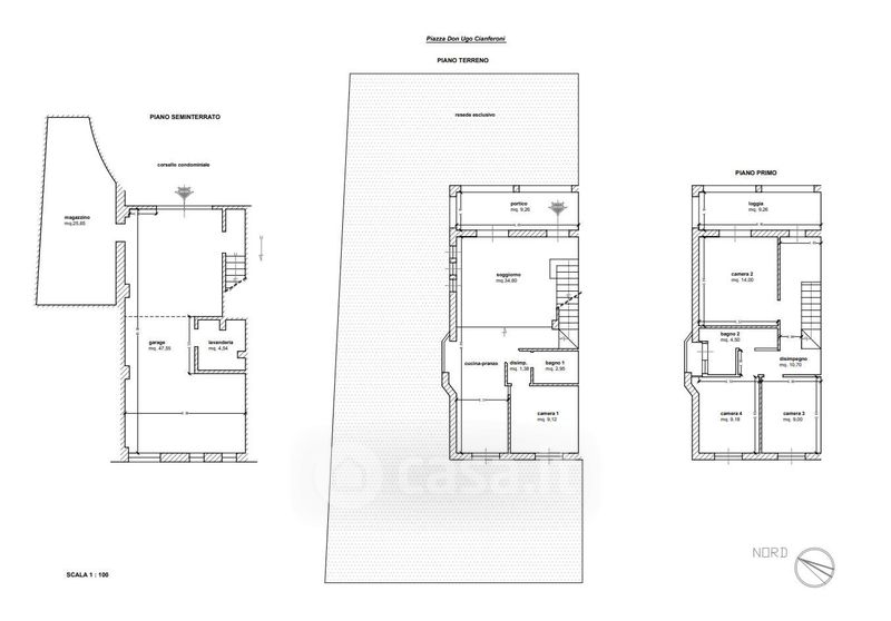
Appartamento in vendita Piazza Don Ugo Cianferoni 14, Barberino Tavarnelle
Salva
Casa.it
1/21
  • Street View
  • Map