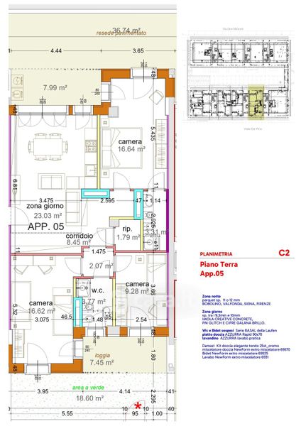
Appartamento in vendita Via del Pino , Calenzano
Salva
Casa.it
1/45
  • Street View
  • Map