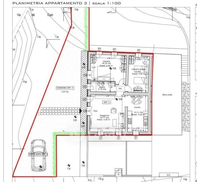
Appartamento in vendita Via di Cupo 41, Calenzano
Salva
Casa.it
1/14
  • Street View
  • Map