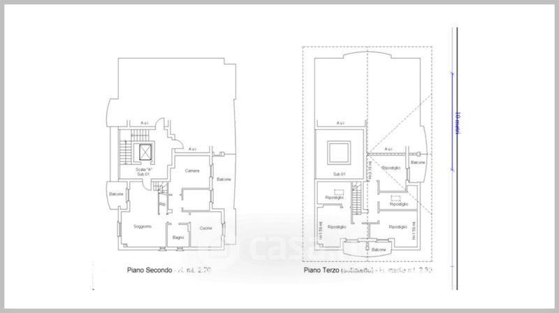
Appartamento in vendita Via Amilcare Ponchielli , Campi Bisenzio
Salva
Casa.it
1/32
  • Street View
  • Map